Jillian Chaffee-Dykslag / Bankers Commercial Real Estate

233 31 Street N, Commercial for sale in Anderson Industrial Park Lethbridge , Alberta , T1H 3Z4

 MLS® # A2269126

0 bathrooms

Sign up to View

Days on Market

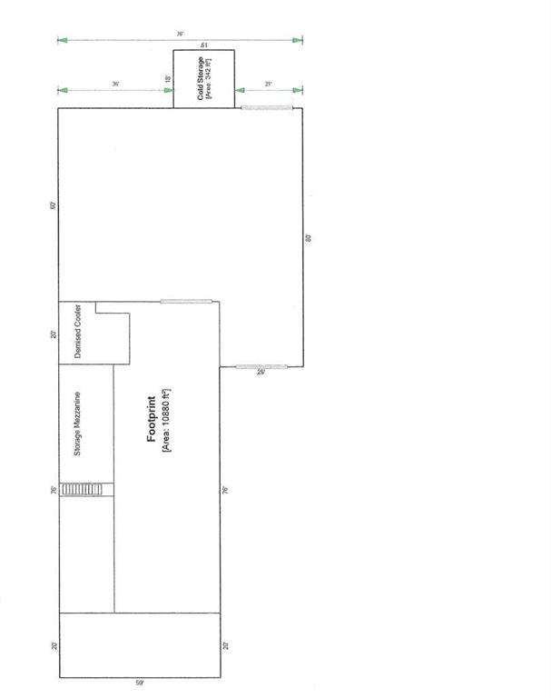
Air conditioning throughout including the warehouse. The building offers overhead doors, loading docks, warehouse, mezzanine, reception and offices. Onsite parking and storage.

Essential Information

  • MLS® #
    A2269126
  • Year Built
    1968
  • Property Type
    Industrial
  • MLS® #
    A2269126
  • Year Built
    1968
  • Property Type
    Industrial
  • MLS® #
    A2269126
  • Year Built
    1968
  • Property Type
    Industrial

Community Information

  • Postal Code
    T1H 3Z4
  • Postal Code
    T1H 3Z4
  • Postal Code
    T1H 3Z4

$10/sqft

233 31 Street N

Schedule Tour
Contact Agent

$1/month
Est. Monthly Payment
$
$
%
Learn More